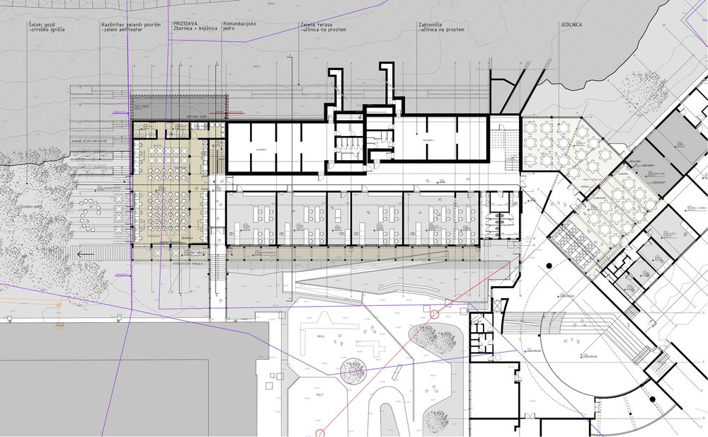
IDEJNA ZASNOVA PRIZIDAVE ZBORNICE IN KNJIŽNICE K OSNOVNI ŠOLI ŠKOFLJICA

Predvidena je gradnja prizidka na SV delu obstoječe osnovne šole, ki bo obsegal novo zbornico, knjižnico, stopnišče in pripadajoče servisne prostore. Poleg novih prostorov se bodo v zaledju šole uredile tudi zelene terase in linearna učilnica na prostem. Obstoječi povezovalni hodnik proti telovadnici se ohranja.

 

Objekt je zasnovan v dveh etažah (P+N). Pritličje je namenjeno zbornici s sanitarijami in tehničnim prostorom, nadstropje pa obsega knjižnico. Zgradba je sestavljena iz dveh volumnov. Prvi, večji volumen, je delno vkopan in v njem so umeščeni prostori knjižnice in zbornice. Drugi volumen predstavlja komunikacijsko jedro s stopniščem. Zasnovan je kot stik med novim in obstoječim volumnom šole, kar tvori subtilen prehod med obema deloma.