Poslovni objekt Batagelj

Lokacija: Postojna

 

Avtorji: Leon Belušič, Lidija Marinšek, Alen Mladinov , Damjan Hidič

 

Projekt: 1999, 2014

 

Izvedba: 2000, 2015

 

 

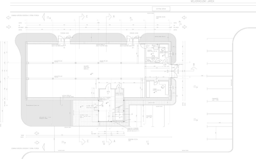
Upravna stavba Batagel je nastal iz prenovljenega gospodarskega objekta, ki je bil očiščen do gole konstrukcije. Stavbi je dodan vhodni stolp s stopniščem in na strehi za boljši izkoristek mansarde še frčade. Obstoječa konstrukcija, kjer so podpore zmanjšane na minimum, je omogočila, da se tloris razvije nemoteno. Tisto kar pa je od konstrukcije ostalo – sohe in trapezna razpirala ostrešja pa v prostor prinašajo posebno estetiko.

Pritličje je namenjeno skladišču in tehničnim prostorom. V nadstropju so pisarniški prostori in uprava družbe. Visoko odprto stopnišče zareže v volumen s skupaj s servisnimi prostori na eni strani. Prostor se nadaljuje v oceanski tloris pisarn, kateremu sta na vsakem koncu dodana dva zaprta prostora za pisarne vodstva. Visoke frčade spuščajo v mansardo svetlobo, ki se prenaša do same sredine prostora tudi preko predelnih sten iz steklenih prizem.