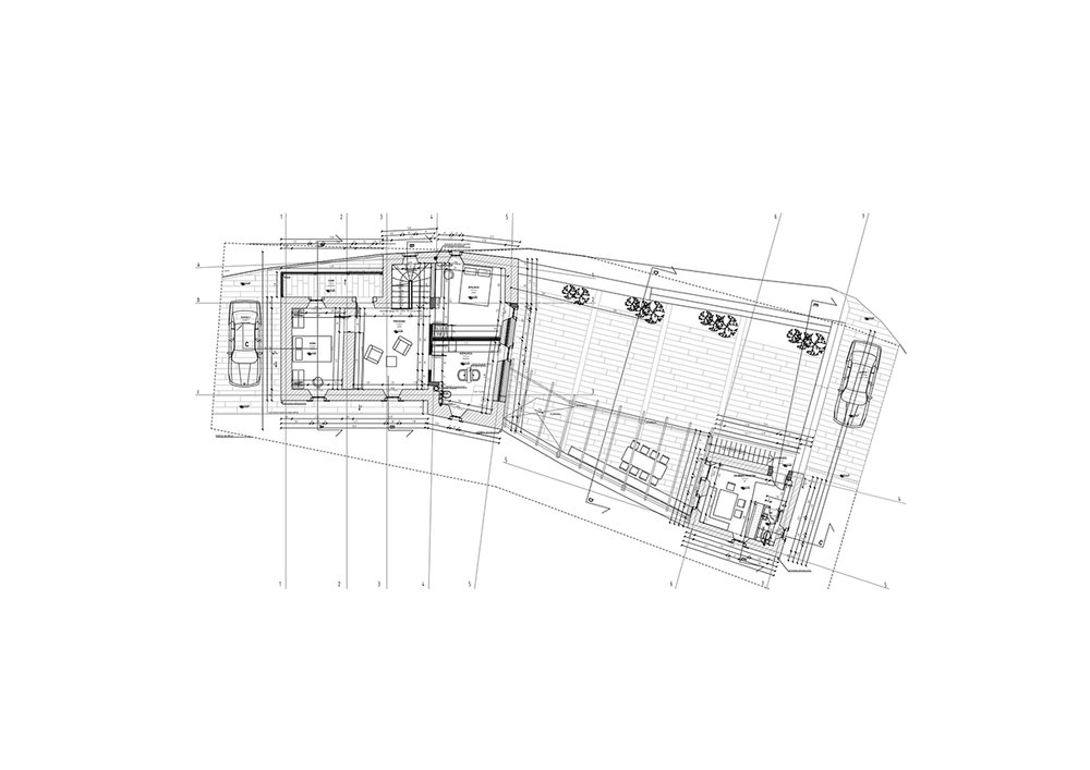
Prenova hiše v Svetem
Lokacija: Sveto pri Komnu
Projektna skupina: Leon Belušič u.d.i.a., Katarina Rustja u.d.i.a.
Leto projekta: 2012
Leto izvedbe:2014


















Lokacija: Sveto pri Komnu
Projektna skupina: Leon Belušič u.d.i.a., Katarina Rustja u.d.i.a.
Leto projekta: 2012
Leto izvedbe:2014