Toggle navigation
projekti
Vsi
zgrajeni
idejni
novice
kontakt
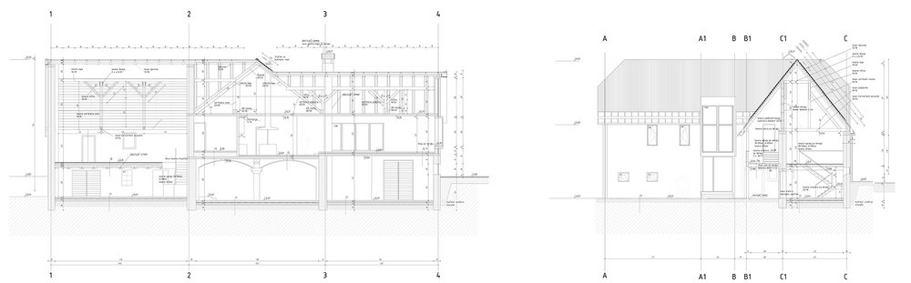
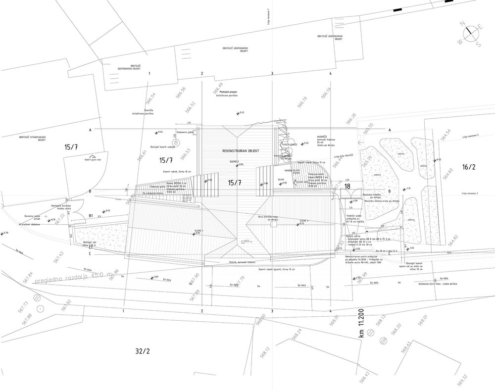
Prenova hiše v ZAgorju
Lokacija: Zagorje
Projektna skupina: Leon Belušič u.d.i.a., Maša Mavrič u.d.i.a.
Leto projektiranja: 2009
Leto izvedbe: 2010